Добрый день!
Меня зовут Илья, я представляю IP Design — компанию, специализирующуюся на разработке чертежей и 3D-дизайнов для строительных проектов. Мы особенно сфокусированы на создании проектов для террас и внешних конструкций (decks).
Наша команда предлагает оперативные и качественные решения для подрядчиков, предоставляя проектную документацию всего за 48 часов.
Мы помогаем не только сэкономить ваше время, но и оптимизировать затраты без потери качества.
Чем мы можем быть полезны:
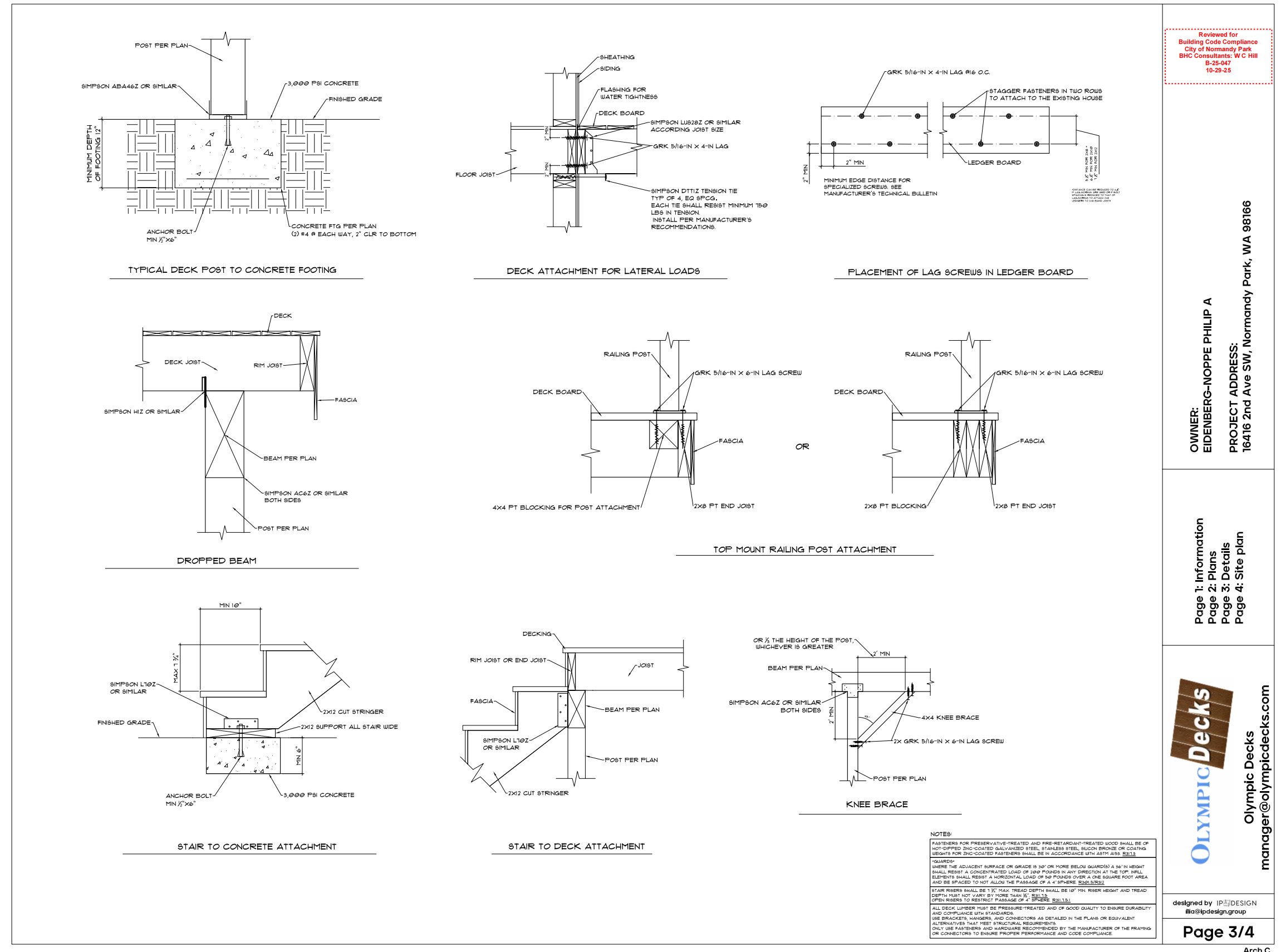
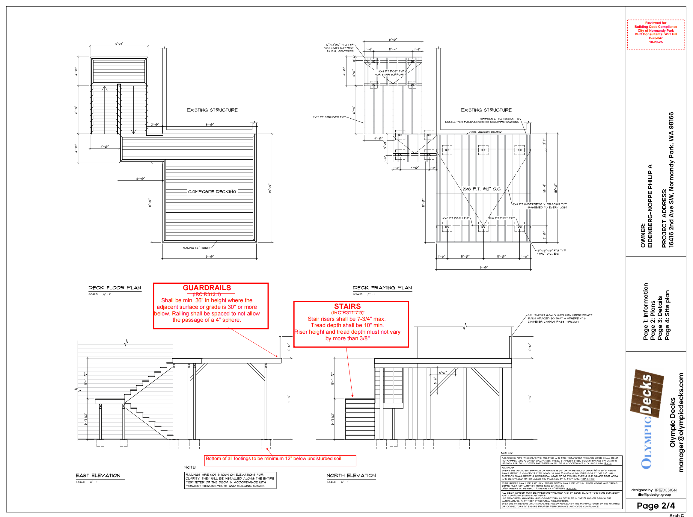
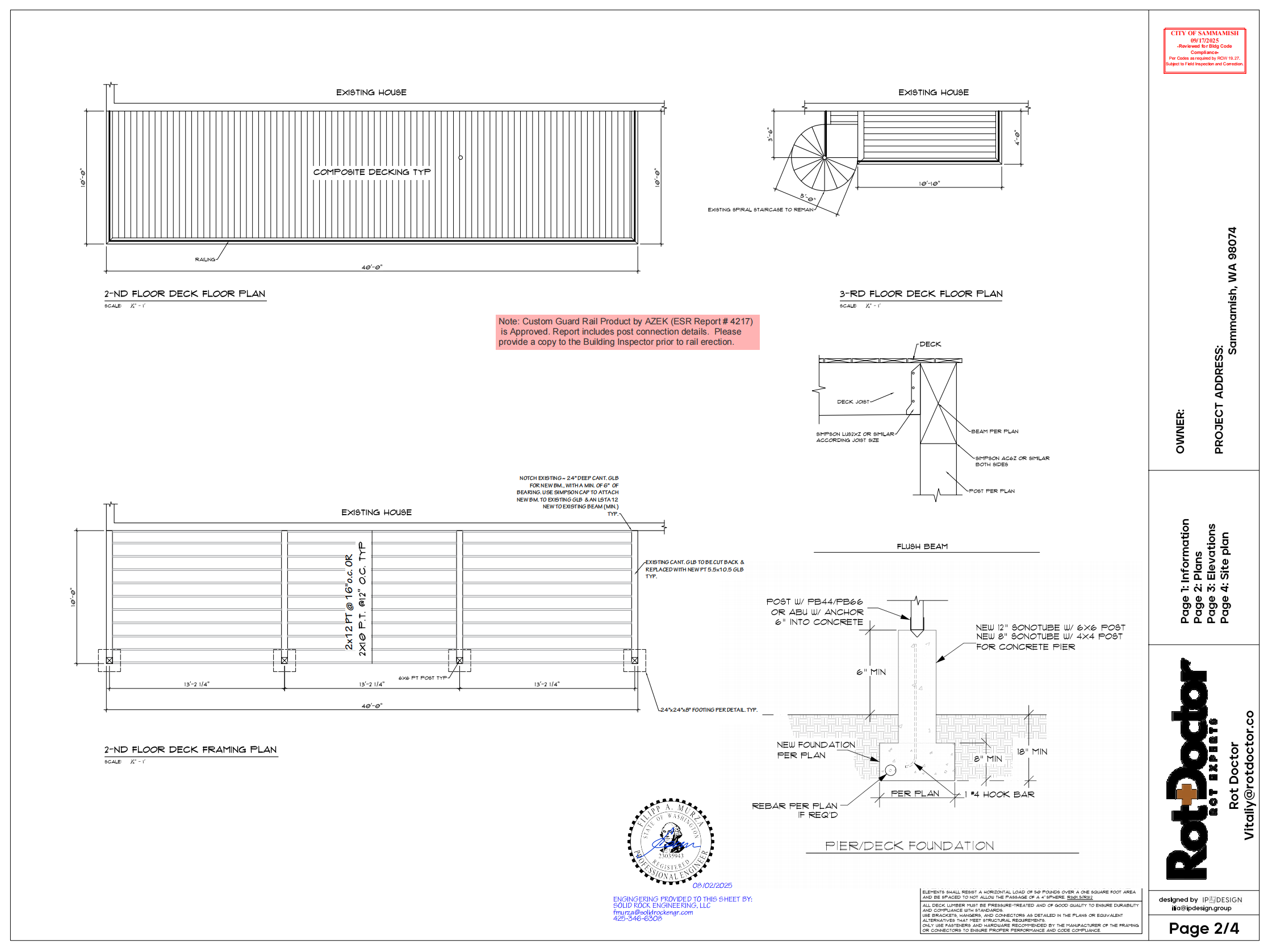
Чертежи: Полные планы и детали, которые соответствуют строительным нормам и пригодны для начала работ.
3D-дизайны: Реалистичная визуализация проекта, чтобы вы и ваши клиенты могли оценить финальный результат заранее.
Сопровождение инспекций: Мы подготовим и подадим все необходимые документы в департаменты, ответим на вопросы инспекторов и назначим инспекции.
Мы работаем в основном на территории штата Вашингтон, но открыты к проектам и в других регионах. Буду рад обсудить возможное сотрудничество и помочь в реализации ваших проектов.
Будем рады работать с вами!








